Trois
plus
architectes sa /
Concours /
Public /
Privé /
Contact /
Bureau /
Publications /
Emploi /
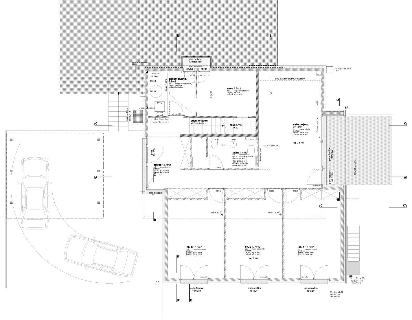
Maison à Pully
Maison individuelle
Mandat privé
Pully
2006