Rénovation d’une maison à Saint-Saphorin
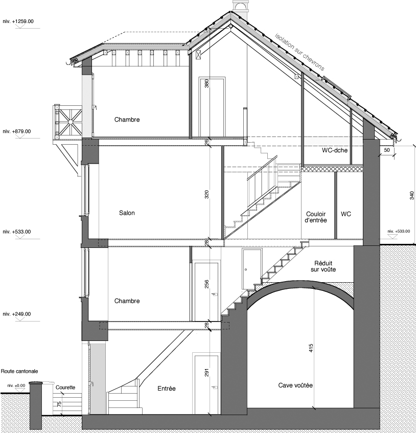
Rénovation et transformation d’une ancienne maison vigneronne (à l’inventaire)
Mandat privé
Saint-Saphorin
2006
Rénovation et transformation d’une ancienne maison vigneronne (à l’inventaire)
Mandat privé
Saint-Saphorin
2006